Skip to product information
1 of 2

Barndosource

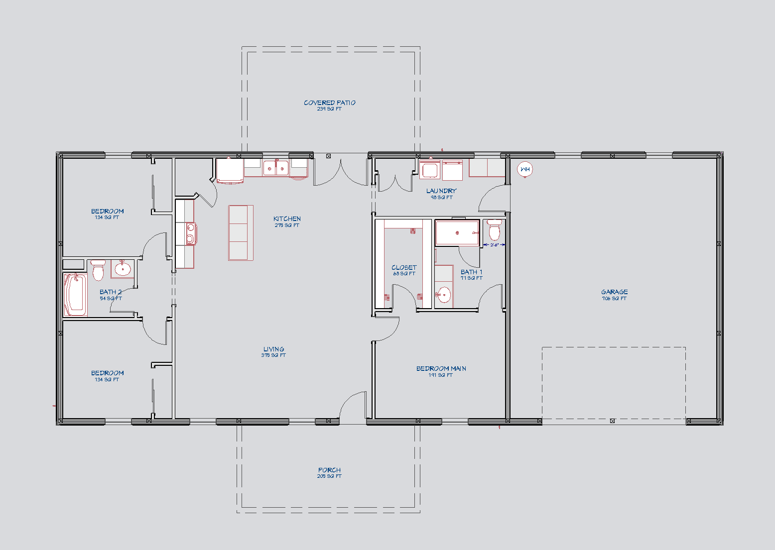
Stoney Plan-1500 SqFt

Stoney Plan-1500 SqFt

Regular price $695.00 USD
Regular price Sale price $695.00 USD
Sale Sold out
View full details