Skip to product information
1 of 2

Barndosource

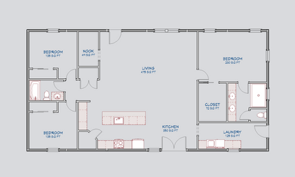
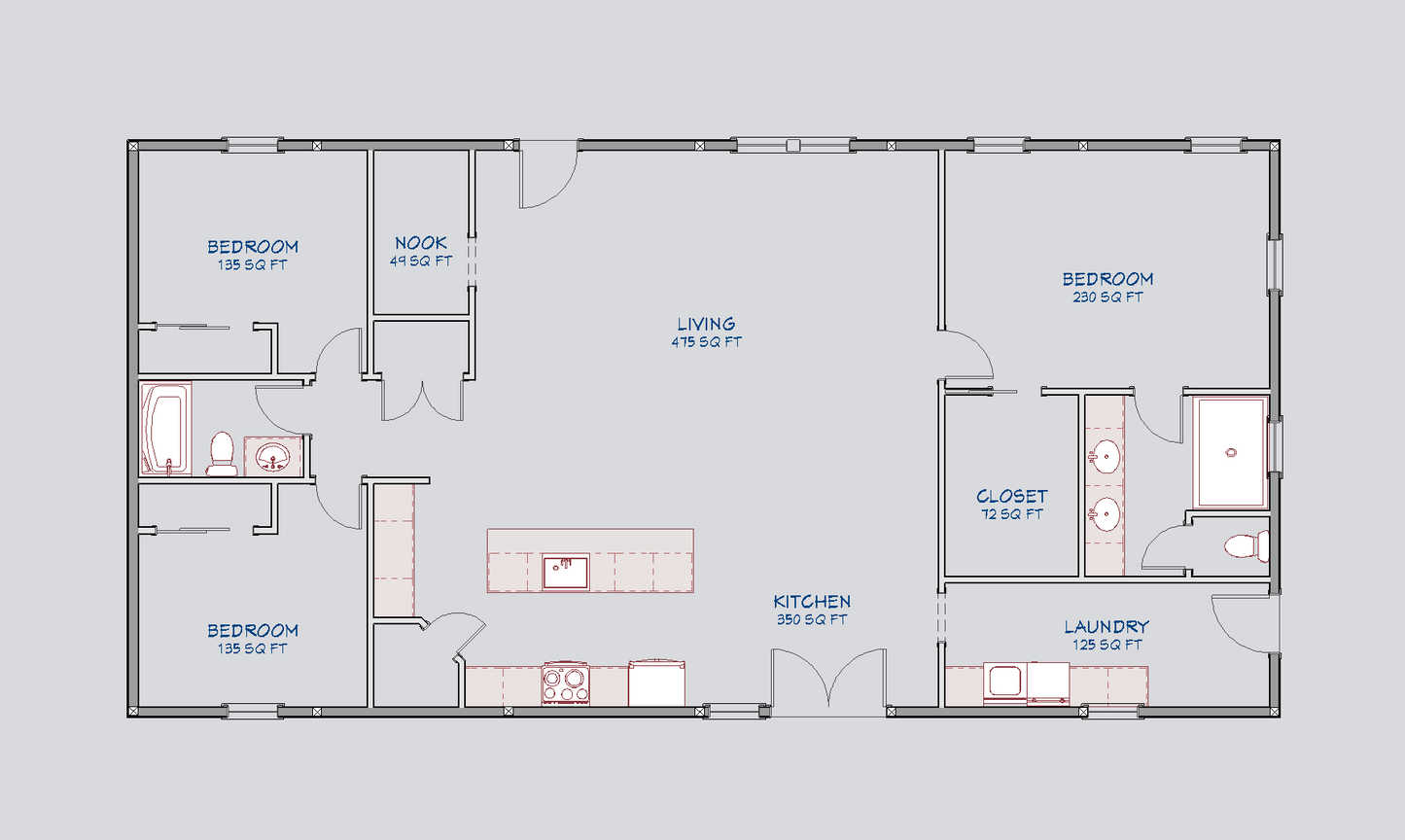
Brimstone Plan-1800 SqFt

Brimstone Plan-1800 SqFt

Regular price $695.00 USD
Regular price Sale price $695.00 USD
Sale Sold out
View full details